设计案例 | 告别老破小,钟爱一种吻合自身气质的家,最动人!
发布时间:2022.03.29
对于考虑孩子成长的学区房来说,更多关注孩子本身成长需求,良好的审美环境亦能丰富提升孩子的眼界。
能够做的,就是足够细致的了解家庭需求,这涉及到每一位成员的喜好,进行融合,结合房屋建筑本身特性,最大化利用好采光、空气、动线,让家庭能够在房子中充分享受到相互陪伴的乐趣。
项目: 南京·仙霞路9号
面积:120㎡平层公寓
合作方式:全案托管
小区是较为熟知的学区房住宅区,且毗邻多处公园。前些年经过市政老屋翻新、加装电梯、道路重新规划后,逐渐摆脱了老破小的传统局面,非常适合享受生活本真的人居住,周围亦有多处民国时期建筑,生活、文化、艺术气息浓郁。
▲小区外街景
▲市政统一加装的透明电梯
业主考虑小孩上学购置了这套学区房,面积相较业主其他住宅略显紧凑,所以设计上尽可能做大每个空间,装饰面保持简洁,通过丰富且考究的家具软饰烘托居家的温暖氛围。
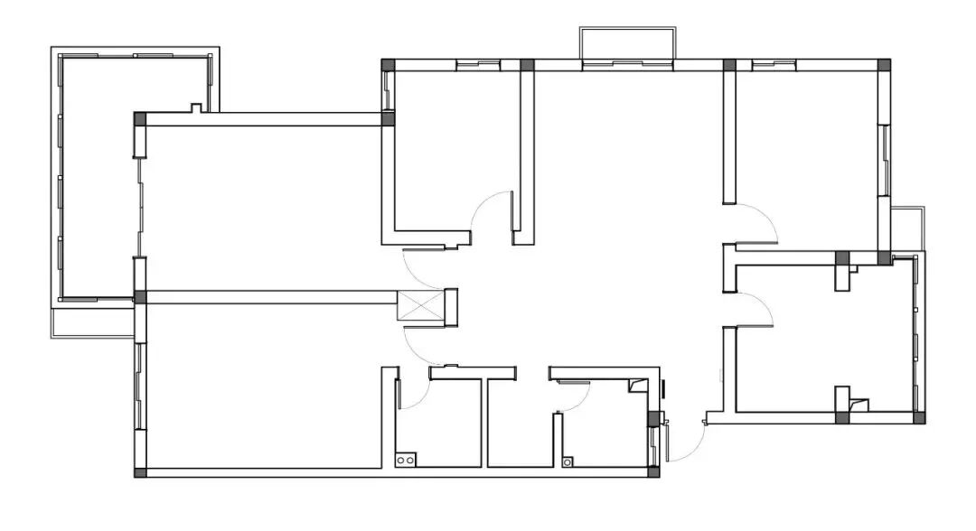
▲ 原始户型图
▲平面布置图
房屋建于上世纪70年代,砖混结构墙体基本都无法改动,我们移除了两个卫生间之间的薄墙,配置双台盆双坐便器,尽量提高空间利用率。
为了保证客餐厅公区的收纳容量,微调厨房门洞位置,给厨房-老房人一侧墙体增加薄柜,老人房及其他四扇房门均采用隐形门设计,空间干净整洁,这也是小户型变大的魔术贴哦!
▲ 房屋原貌
▲客餐厅
▲客餐厅望向入户门
▲朝南次卧一
▲北次卧
▲朝南次卧二
▲主卧外阳台
▲厨房
▲卫生间
房屋本次改造的任务着实不算简单,快来老房子焕然一新吧!
客厅
客餐厅保持原有空间,设计通过简约手法勾勒空间流畅线条。
房屋原始层高2.8米,在老房中相对宽裕,做了超薄吊顶,并通过多种灯光形式营造室内温馨氛围。
细绒面橘黄色沙发,造型略显呆萌,圆润柔和,坐感非常舒适。
大部分柜体都设计为隐藏式,少量对外展示,摆放书籍、孩子手作等,生活气息十足,也见证了孩子们一路的成长。
平时躺在沙发上,静静的看一本书,喝一杯茶,陪孩子在地毯上玩耍。
餐厅
空间主色调是洁净的白,搭配轻松有氧的原木色三层实木地板,地面配置地暖,天气变冷的时候,孩子们光脚在地面嬉戏玩耍也不用担心脚底受凉。
加高处理的房门让空间显得更加修长,为了打破白色造成的“寡淡”,设计师精心的在两扇白色房门中间部分植入少量黑色元素,保持色彩平衡。
底部镂空处理,也可以堆放孩子们的书籍玩具,有颜又好玩。
餐厅挂画出自大宝手笔,当初在设计开始时讨论可以把孩子们涂鸦的画作融合到软装陈设中去。
新房入住后,亲朋好友来访,都会被眼前这幅画作吸引,大宝亦很是自豪哦!
墙面适量植入木色,追求细腻的空间色彩平衡。经过隐形门处理的房门,让空间更加规整干净,四扇房门因此完全遁入墙中。
厨房
对小户型房屋来说,黑白色是可以让空间变大的魔法色系,悦目的色系即使时间久了也不会产生审美疲劳。
所有的厨具等杂物都隐藏在收纳柜子里,家电也进行镶嵌式处理,整体视觉上简洁干净。
主卧1
主卧室4.5*3.3米,空间较为宽裕,配置衣柜、斗柜、写字桌。
大平顶内嵌不锈钢条,半高床头背景内植入条形灯光,细节中流露出生活的优雅考究。
床头放着样式特别的白色小桌子,橘黄色的台灯、香薰给房间增添许许幸福感。
低饱和度的奶灰色系让空间光感宜人,营造出良好的睡眠环境。
白色板材的不锈钢柜子和男孩卧室是一套系的,配合简约的书桌。很好的进行日常收纳,放一些花卉植物,增加房间的温馨感。
▲从L形阳台望向主卧室
主卧室外带的L形阳台规划为家政间,家庭洗衣晾晒均集中在此,洗烘机一体方便全家人的生活。
从阳台望出去,窗外绿意盎然,贴近大自然的气息。
次卧1
大宝房用一抹浅浅的海蓝色作为背景色,结合孩子生活中使用场景搭配升降写字桌、钢琴、展示柜,衣柜,舒适自由。
米奇样式的吊顶灯,活泼俏皮。房间的主题家具都以白色为主,注重实用性。
白色板材的不锈钢床头柜,灰蓝色蘑菇造型小台灯,简约大方。
写字桌集成了阅读和陈列功能,淡淡的哑光白对眼睛非常友好。
床尾空间设计了一组深度33cm的薄柜,依然采用开放柜和暗藏式柜体结合,充分利用空间的同时,视觉呈现出节奏美感。
次卧2
女孩卧室地板上铺了柔软的粉色编织地毯,小朋友上床前可以和可爱的独角兽、斑马玩耍。
充分考虑采光环境,摆放1.2*2米小床,留出充足空间收纳孩子衣物玩具,柜体均采用到顶设计,容量够大,视线内清爽整洁。
主卧2
奶咖色系的父母房雅致宁静,床尾一侧柜体结合阅读衣帽功能,适量隐藏式灯光营造柔和的阅读环境。
洗手间
▲原有卫生间布局
▲改造后布局
两间相邻卫生间,其中一间是暗卫,隔墙占用空间,所以将两间合二为一,设置中央干区双台盆,左右两侧各配置坐便器,及淋浴房,方便家庭成员在不同时间段的需求。
