翌嘉实景案例 | 99㎡旧房改造,庄重与优雅的浪漫融合!
发布时间:2022.03.29
今天来看的是99㎡旧房改造。由于之前房屋一直在出租,这次业主打算翻新一下,准备长久居住。
业主家的小朋友,从小就喜欢钢琴、架子鼓,平时在家中经常练习弹钢琴和打架子鼓。
考虑到业主的需求,设计师在空间有限的客厅中,预留出钢琴和架子鼓的位置。
地址: 浦东丁香路
项目:联洋年华
面积:99㎡
户型:两室两厅一卫
风格:中古风格
户型解析
这个房子面积刚刚适用,但是之前的装修有很多缺陷:
1.原有地板颜色太深,显得整体空间太沉闷老气。
2.空间感上有点压抑。
3.房子有很多设计不合理的区域划分。
4.储藏空间不够,并侧凌乱。
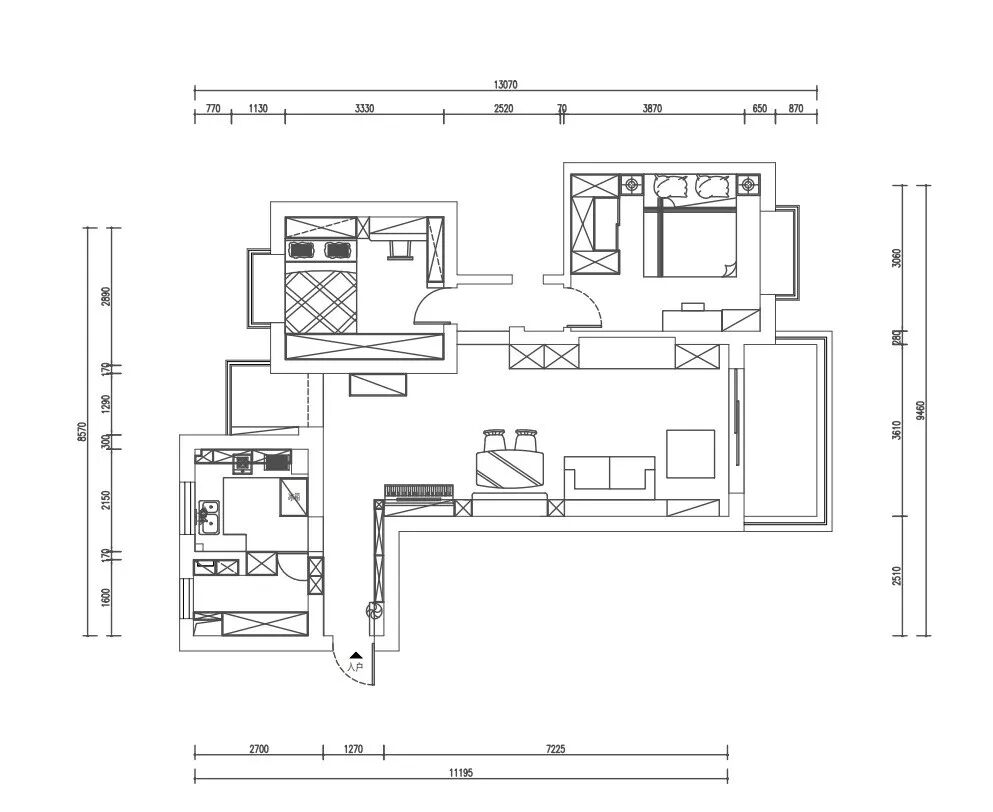
▲改造后户型图
玄关
玄关延伸了一排玄关柜,墙面上用开放格组合,空间的体验感大大提升。
无主灯设计,面结合挂钩,内嵌灯带,用来悬挂常用衣物,极具现代式的舒适感,同时与空间风格保持一致。
收纳柜中空留有开放格和关闭格,满足多重的收纳需求,保持室内整洁干净的同时,营造出温馨感。
餐厅
餐厅靠墙放置一张简易的木色餐桌,一家三口也够用。
客厅
客厅、餐厅、学习区在同一空间依次展开,无隔断开阔空间的视野野,动线上也流畅自然。
黄色沙发区搭配绿植,呈现出的清新基调,给人一种放松舒适的空间感。
各空间没有做特别的区分,即相互独立又相互联通。
主卧
床头灯的造型复古简约,流露了屋主追求轻奢自由的生活态度。
以年轻化的设计,营造出一种宽敞舒适的空间气质。
主卧延伸了中古风情,木质复古的元素在灯光的渲染下更显温柔温馨。
次卧
除了整体上的自然氛围之外,还使用了令人感到舒适放松的材料、设计和家具。
书房直接套入次卧,方便使用,内嵌灯带,采光更佳。
中古灰绿色搭配奶灰色,往往给人踏实、宁静的感觉。
来看看设计师为打造这个家做了什么???
|硬装部分
对空间整体结构的改造进行了总的规划,空间主材这些也是总体把控的。包括施工指导,如果施工方面有不懂的地方,设计师会到现场指导施工,对细节进行把控。
|软装部分
统筹硬装设计是一件很庞大的工作,更加需要耐心和细心,墙面软装色彩,家具选择,软装饰品选择,窗帘布艺,甚至细微到一个茶杯的选择都是要考虑到的,很多时候选择这些东西要拿上千个色卡和样板进行比对。
